Thang nâng hàng thủy lực 500kg nâng cao 4m nhập khẩu
Thang nâng hàng 500kg là một trong những thiết bị không thể thiếu trong các nhà xưởng, nhà kho, và các công trình công nghiệp. Với khả năng nâng hạ hàng hóa lên đến 500kg, thiết bị này không chỉ giúp tiết kiệm thời gian và công sức mà còn đảm bảo an toàn trong quá trình vận chuyển. Bài viết này sẽ cung cấp thông tin chi tiết về thang nâng hàng 500kg, từ tính năng nổi bật đến ứng dụng thực tế và những lưu ý khi sử dụng.
I. Giới thiệu về thang nâng hàng 500kg

Thang nâng hàng 500kg là một thiết bị công nghiệp được thiết kế để nâng hạ các loại hàng hóa có tải trọng tối đa 500kg. Thiết bị này thường được sử dụng trong các nhà xưởng, nhà kho, siêu thị, và các công trình xây dựng. Với khả năng nâng hạ hàng hóa một cách nhanh chóng và an toàn, thang nâng hàng 500kg đã trở thành một giải pháp không thể thiếu trong nhiều ngành công nghiệp.
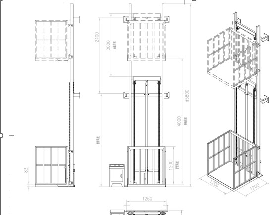
II-Bảng thông số kỹ thuật chi tiết
Dưới đây là bảng thông số kỹ thuật chi tiết của thang nâng hàng 500kg:
| Thông số | Chi tiết |
|---|---|
| Tải trọng tối đa | 500kg |
| Chiều cao nâng tối đa | 6m – 10m (tùy model) |
| Chiều cao nâng tối thiểu | 0.2m |
| Kích thước sàn nâng | 1.5m x 1.0m |
| Hệ thống vận hành | Thủy lực/Điện |
| Nguồn điện sử dụng | 220V/380V |
| Tốc độ nâng | 8-10 mét/phút |
| Chất liệu khung | Thép chịu lực, sơn tĩnh điện |
| Hệ thống an toàn | Phanh an toàn, khóa thủy lực |
| Trọng lượng thiết bị | 500kg (tùy thuộc vào thiết kế) |
| Bảo hành | 12-24 tháng |
| Product Model | ||
| 1 | Lifting Platform | ELP0.5- 4.0m |
| 2 | Elevator Height | 4m |
| Specification | ||
| 1 | Capacity | 500KG |
| 2 | Lifting Height | 400mm |
| 3 | Table size | 1200*1200mm |
| 4 | Lower Height | 85mm |
| 5 | Gate | 1200 direction one-way in and out |
| 6 | Pump | 8ml/r |
| 7 | Oil Tank | 30L |
| 8 | Chrome plated rod 50mm | 50mm(high frequency treatment)) |
| 9 | Oil Size | ∅85*∅70mm precision tube |
| 10 | Motor | 2.2KW/380V/50HZ |
| 11 | Lifting valve platform | TAI QIN brand |
| 12 | Oil pipe | 4 points double-layer steel wire |
| 13 | Track | 10# I-beam; 2pcs |
| 14 | Pump Oil | 46# anti-wear hydraulic oil |
| 15 | Lifting&Lowering speed | Lifitng 6-7 meters/minute, lowering adjustable |
| 16 | Installation environment | Indoor floor opening |
| 17 | Elevator structure | |
| 18 | Circuit layer | Two layer |
| 19 | Color | Blue |
| 20 | Cable | Chancheng brand |
| 21 | Electrical switch | Tianzheng/Changde/Omron brand |
| 22 | Panel | 4mm patterned plate; |
| 23 | Panel frame | 80*40*3mm; |
| 24 | Elevator column | 80*40*3mm; |
| 25 | Chain | 1 inch chain 2pcs; (Tianli brand) |
| 26 | Secondary guide | 8## channel steel; 2pcs |
| 27 | Reinforcement material | 80*40*3mm rectangular tube |
| Note: The specific details of the lifting platform are subject to the actual object! | ||

III. Kết luận
Thang nâng hàng 500kg là một giải pháp tối ưu cho việc nâng hạ hàng hóa trong các môi trường công nghiệp và thương mại. Với thiết kế chắc chắn, vận hành hiệu quả và tính an toàn cao, đây là thiết bị không thể thiếu giúp tăng năng suất và tiết kiệm thời gian lao động. Nếu bạn đang tìm kiếm một giải pháp nâng hạ hiệu quả và an toàn, thang nâng hàng 500kg chính là sự lựa chọn hoàn hảo.
Hãy gọi ngay cho chúng tôi theo số ĐT(Zalo): 0838.24.24.24- 0868.501.197


